Skip to content
Fish Creek Homes
Main Menu
Getting Started
House Plans
Communities
Meet Fish Creek
The Idea Gallery
Fish Creek Lights
Learn More
Request a Quote
FCL Gallery
Contact
Schedule a Consultation
480.734.8382
Main Menu
Getting Started
House Plans
Communities
Meet Fish Creek
Idea Gallery
Fish Creek Lights
Learn More
Request a Quote
Gallery – FCL
Contact
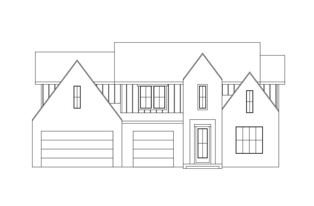
The Latitude II French A
bedrooms: 4 | Bathrooms: 3.5 | Plan Type: 1.5 Story | SQFT 3095
<<
>>
Main Level
Upper Level
Lower Level
> See All the Plans
> Questions about this plan?
> Download this plan as a PDF
Friend Email
Enter your message
<<
>>
All House Plans